Bombas Centrífugas Autocebantes
Las bombas centrífugas son consideradas como una de las más sencillas por su gran variedad de usos. Poseen un impulsor que imparte energía al fluido por la fuerza centrífuga. El cuerpo o voluta dirige el fluido y transforma la velocidad en presión. No existe en ellas peligro de presiones anormales.
Características Principales
- Autocebantes: Aspiración automática sin perder el cebado, eliminando el aire de la carcasa.
- Especialmente diseñadas para el bombeo de lìquidos cargados de impurezas y materias sólidas en suspensión.
- Acoplamiento: Mediante manchón elástico o poleas y correas.
- Accionamiento: Motor eléctrico (Estándar y Antiexplosivo) y motor a explosión Diesel/Naftero.
- Materiales disponibles: Acero al Carbono, Acero Inoxidable y Bronce, entre otros.
Flyer Técnico
(PDF 271 KB)
Información Adicional
Referencias
1. Manómetro
2. Válvula de Cierre
3. Válvula de Liberación de Aire
4. Válvula de Retención
5. Vacuómetro
6. Cañería de Drenaje
1. Tapa de Inspección
- Diseñada para eliminar los cuerpos extraños que pueden acumularse, retomando el servicio en minutos.
- Con acceso directo al impulsor.
- Diseñado para ser removido de forma rápida y sencilla sin desconectar la bomba de las cañerías.
- Contiene todas las partes móviles.
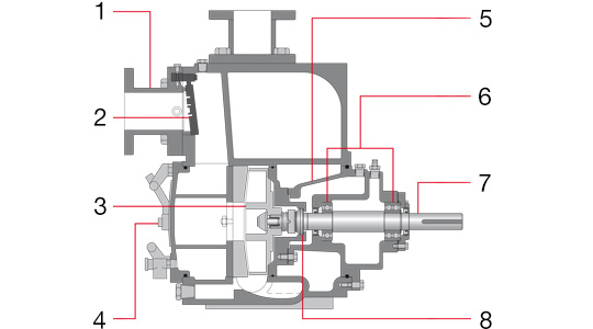
Referencias
1. Cuerpo
2. Clapeta
3. Impulsor
4. Tapa de Inspección
5. Conjunto Rotativo
6. Rodamientos
7. Eje
8. Sello Macánico
Punta de Eje Libre
El cliente realiza el montaje y
alineación con el motor.
Acoplada en Directo
Base Chapa de acero reforzada.
Perfiles U / Patín Petrolero.
Acople Elástico/a láminas.
Admite la colocación de multiplicador
/ reductor.
Poleas y Correas
Del tamaño adecuado para alcanzar
las RPM necesarias. Es posible
colocar el motor en diferentes
posiciones (ubicado al costado y
sobre la bomba).
| Caudal | Altura | Velocidad | Tª de Líquido |
|---|---|---|---|
| 10 a 500 m³/Hs | 8 a 55 m.c.a. | 650 a 2900 RPM | 10 / 60°C * |
* Dependiendo el modelo y materiales.
- Frigoríficos: Bombeo del Efluente de Faena a la Zaranda.
- Industria Vitivinícola: Bombeo del Efluente de Bodega.
- Papeleras: Extracción del Efluente con Pasta en Pata Barométrica.
- Curtiembres: Trasvase de Efluentes en Distintas Etapas.
- Industria Avícola: Rebombeo de Vísceras / Rendering.
- Textil: Bombeo de Efluente Crudo con Fibras y Colorantes.
- Gases Industriales: Bombeo de Efluente en las Plantas Aeróbicas de Tratamiento.
- Industria Alimenticia: Bombeo de Efluente Crudo a las Lagunas de Tratamiento.
- Industria Petrolera: Bombeo de Lodo. Extracción de Producto de Fondo en Pileta API.





